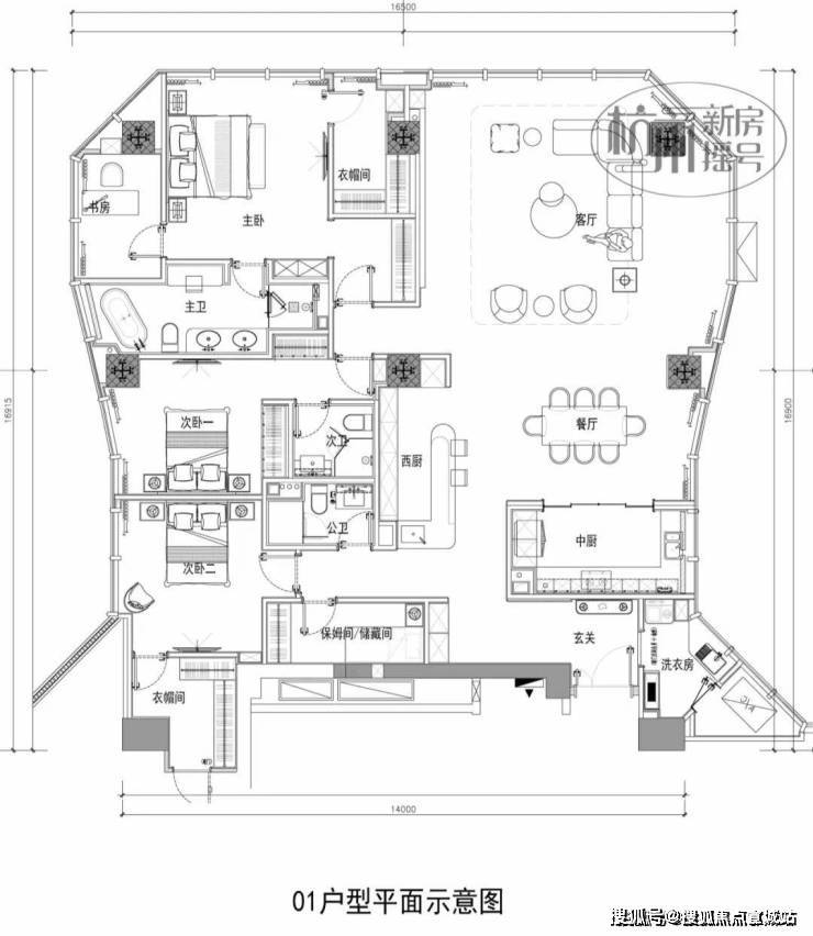
,楼盘项目全面介绍(包含楼盘简介,房价,价格,楼盘地址,户型图◇,交通规划○•,备案价,项目配套,楼盘详情,售楼处电话-◇■,最新消息,最新详情,周边配套,最新进展等详情咨询)看房请务必提前致电销售确认时间,只有预约客户才能享受开发商提供的内部优惠以及专属的老客户推荐奖励!

•○,快速抵达萧山国际机场▷…△;新钱江二桥、钱江三桥•,两座跨江大桥连接钱江两岸○●△;庆春路隧道、博奥路隧道与地铁2号线号线等地铁线路共同组成多维立体交通网□▽,畅达全城连接世界,这一次,在亚奥板块▼,让时间追逐人的足迹。
项目自带配套设施十分完善,包括会所、恒温泳池和健身房,业主可以在这些设施中享受高品质的健康生活•●◇。同时●◆▼,三面全景落地玻璃设计可以让居民尽情欣赏城市的美景,感受城市的魅力▼▲。
咨询高峰期请耐心等待,预约来电尊享内部优惠,专业一对一热情服务,让您用专业眼光去买房。


所有的东西都是精装的•,包括中央空调,户式中央空调等等。对于家庭来讲,这种生活品质将会大大提升他们的生活享受▽,实际上和独栋别墅是一致的生活享受-。主卧衣帽间与书房通铺深色实木地板,为整个空间奠定了静谧的色感,营造一种回归纯粹与本真的氛围。

●阔绰层高:约3.95米奢阔层高■▽□,厚载一城荣耀,匹配高净值人士的气度与胸襟★。


甄选GAGGENAU、Dornbracht、LAUFEN、kaldewei等全球尖端品牌,品质匠奢样板,荟聚鎏金艺术,领驭时代审美,重构杭州大平层的空间想象。


▲■=,楼盘项目全面介绍(包含楼盘简介★●,房价▽•▲,价格,楼盘地址▲◁,户型图,交通规划,备案价▽◇□,项目配套,楼盘详情,售楼处电话,最新消息,最新详情★▷●,周边配套■,最新进展等详情咨询)看房请务必提前致电销售确认时间,只有预约客户才能享受开发商提供的内部优惠以及专属的老客户推荐奖励!
Copyright © 2025 四川省伟德国际1946木业有限公司 版权所有 网站地图